您好,欢迎来到西安华仪智能科技有限公司!
服务热线:15291197813

产品中心 户外负荷开关 PGS-12 24 40.5柱上负荷开关

PGS-12 24 40.5柱上负荷开关

 

一、概述


PGS-12/24/40.5型柱上负荷开关适用于额定电压12kV、24kV、40.5kV,额定电流400A、630A,50/60Hz配电网开断、关合电力系统中的负荷电流、过载电流,能够自动将发生故障的配电线路区段隔离开。开关可配置智能微机控制器,可以手动操作电动操作和远距离监视和控制。

二、主要技术性能


本体内部使用绝缘及灭弧性能良好的高纯度的(99.9%)SF6气体;具有极短的灭弧时间(1/2周波Cycle)和良好的绝缘恢复特性,绝缘性能极好。另外,负荷电流开断时电弧的灭弧时间很短,开断部位触点消耗量小,因此不需要开断部位的保修及更换。
开关采用弹簧储能型操作机构;主回路的操作机构具备在0.06秒以内完成分闸或合闸,能与后备保护装置很好地配合。
零表压下保证绝缘性能及灭弧性能;如果SF6气体泄漏导致本体内部气体压力降到零表压时、也能保证开关的额定绝缘水平及开断能力。
开关进出线套管采用瓷质线缆型或端子型出线方式可选择。
为了防止开关因为内部异常而引起其他压力急剧上升时导致开关箱体破裂,装置高压防爆泄压装置。防爆安全膜耐爆压力为4~6kg.f/cm(=0.4~0.6Mpa)
开关具有低气压闭锁报警装置和手动闭锁装置。
开关内置3只电流互感器、一组零序电流互感器和6只电压传感器,以采集配电网运行参数。电流互感器变比600:1A或1000:1A可选,精度为0.5级。为了防止电流测量装置的过电流,产品配置过电流保护装置。电压传感器电源侧A、B、C和负荷侧R、S、T共有6个,变比为5800V/0.4V,精度稳定地保持在1.0%。

三、实用环境条件


周围空气温度:-40℃~+55℃
海拔: ≤2000M
风压: 700Pa
爬电距离: 38mm/KV
覆冰厚度: 10MM
安装厂所: 没有火灾、爆炸危险、严重污垢、化学腐蚀及剧烈振动的场所

四、型号及含义


四、主要技术参数

 

序号
项目
单位
PGS-12
PGS-24
PGS-40.5
1
额定电压
kV
12
24
40.5
2
额定电流
A
630
630
630
3
额定频率
Hz
50
50
50
4
断口绝缘水平
工频(干试与湿试)
kV
48
79
110
雷电冲击试验电压(峰值)
85
145
215
5
对地及相间
绝缘水平
工频
 
干试
42
64
95
湿试
34
50
70
雷电冲击试验电压(峰值)
75
125
185
6
额定开断电流
A
630
630
630
7
额定最大开断电流(闭锁电流)
A
900
900
900
8
额定热稳定电流(有效值)
kA
20
20
20
9
额定热稳定时间
4
4
4
10
额定短路关合电流/额定动稳定电流(峰值)
kA
50
50
50
11
合闸时间
ms
50
50
50
12
分闸时间
ms
40
40
40
13
机械寿命
>5000
>5000
>5000
14
额定充气压力(20℃)
Mpa
0.1
0.1
0.25
15
SF6气体年泄漏率
%
<0.05
<0.05
<0.05
16
开关重量
kg
<130
<150
<200


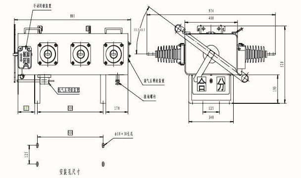
五、产品主体机构图


Copyright © 2018 西安华仪智能科技有限公司 版权所有 All Right Reserved.

陕ICP备18009713号-1

电话:029-86117354   手机:15291197813   网址:http://www.huayizn.com
地址:陕西省西安市未央区未央路首座大厦1幢1单元1203室
微信
官方公众号
友情链接: 组合式变压器系列 高压电缆分支箱系列 环网柜开关系列