您好,欢迎来到西安华仪智能科技有限公司!
服务热线:15291197813

产品中心 户外智能真空断路器 zw32-12永磁真空断路器

zw32-12永磁真空断路器

概述
ZW32M-12型户外高压永磁真空断路器(以下简称断路器)为额定电压12kV,三相交流50Hz的户外配电设备。主要用于开断、关合电力系统中的负荷电流、过载电流及短路电流。适用于变电站及工矿企业配电系统中作保护和控制之用,及农村电网频繁操作的场所。
本断路器具有体积小、重量轻、防凝露、免维护等特点,能适应较恶劣的气候条件和污秽环境。
该型产品采用永磁操作机构进行操作;由于永磁操作机构由永磁体提供保持力,使开关保持在分合闸位置,其机械零件数量少、机械传动链短,从而大大提高了开关的可靠性和机械寿命。
型号及其含义
1
主要技术参数
序号 项目 单位 参数
1 额定电压 kV 12
2 额定频率 Hz 50
3 额定电流 A 630
4 额定短路开断电流 kA 20
5 额定峰值耐受电流(峰值) kA 50
6 额定短时耐受电流 kA 20
7 额定短路关合电流(峰值) kA 50
8 机械寿命 10000
9 额定短路开断电流开断次数 30
10 工频耐受电压(1min);(湿)(干)相同、对地/断口 kV 42/48
11 雷电冲击耐受电压(峰值)相间、对地/断口 kV 75/85
12 二次回路1min工频耐压 kV 2
外形及安装尺寸图
1<
1
1
1
1
1
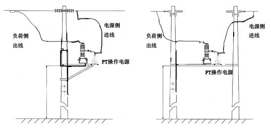
安装示意图
1
1
*断路器离地面不小于6.5米 *PT与断路器的间距不小于1.5米
YZW-10型 户外型操作电源变压器
1
1 型号含义
1
本产品是供断路器操动机构操作电源的专用变压器。
2 技术参数
型 号 YZW-10 额定一次电压10KV(线电压) 额定二次电压(0.11或0.22KV) 容量(1000VA) 重量45KG
3 外形及安装尺寸见图
1
爬电距离580mm

建议ZW32型永磁真空断路器与PT安装间距大于580mm以上

********************
1
永磁机构的特性参数与所适配的断路器有关,特别是真空灭弧室的参数。不同系列的真空灭弧室,对分合闸速度、机械寿命、触头压力、开距、超行程、弹跳、不同期等有不同的要求,与之相对应,需要对永磁机构进行最优设计,以达到灭弧室的要求。因此,对用户来说,选用永磁机构,并不是保持力越大越好、速度越快越好,速度太快,一方面降低真空灭弧室的寿命,另一方面是以增大操作电流为代价的,导致控制部分可靠性下降。
下表是我公司设计的ZW32-12/630-20型永磁机构的相关参数
ZW32永磁机构外形图
1
1

Copyright © 2018 西安华仪智能科技有限公司 版权所有 All Right Reserved.

陕ICP备18009713号-1

电话:029-86117354   手机:15291197813   网址:http://www.huayizn.com
地址:陕西省西安市未央区未央路首座大厦1幢1单元1203室
微信
官方公众号
友情链接: 组合式变压器系列 高压电缆分支箱系列 环网柜开关系列